新能安企业展厅

新能安企业展厅

新能安企业展厅

Ampace Corporate Showroom

Ampace Corporate Showroom

Ampace Corporate Showroom

中国|厦门

中国|厦门

中国|厦门

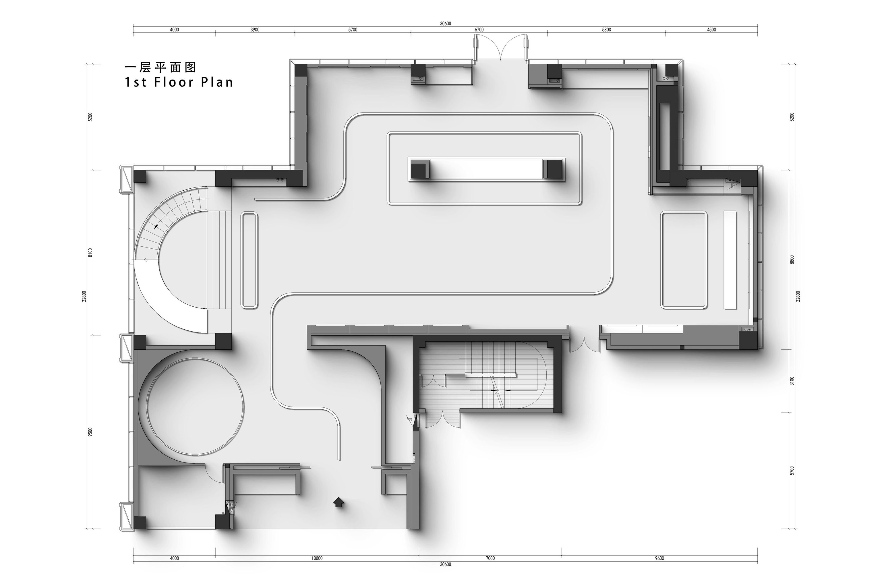
作为全球知名锂电池供应商——ATL与CATL的合资公司,新能安专注高端锂电池的研究与创新,聚焦储能系统、微型车、智能产品驱动电池等三大领域的研发、生产、销售与服务。以极致用户体验的绿色能源解决方案,助力能源转型,赋能美好生活。本次展厅设计项目的核心是“全场景绿电生态圈”的构建。展厅分为两层,总面积770平方米,以展示新能安在绿色能源领域的技术创新与发展历程为主线,设计不仅服务于品牌推广、实力展示和商务合作的需求,更通过全新的展陈理念,塑造了一个能够引发深刻思考、激发对话与合作的平台。

作为全球知名锂电池供应商——ATL与CATL的合资公司,新能安专注高端锂电池的研究与创新,聚焦储能系统、微型车、智能产品驱动电池等三大领域的研发、生产、销售与服务。以极致用户体验的绿色能源解决方案,助力能源转型,赋能美好生活。本次展厅设计项目的核心是“全场景绿电生态圈”的构建。展厅分为两层,总面积770平方米,以展示新能安在绿色能源领域的技术创新与发展历程为主线,设计不仅服务于品牌推广、实力展示和商务合作的需求,更通过全新的展陈理念,塑造了一个能够引发深刻思考、激发对话与合作的平台。

作为全球知名锂电池供应商——ATL与CATL的合资公司,新能安专注高端锂电池的研究与创新,聚焦储能系统、微型车、智能产品驱动电池等三大领域的研发、生产、销售与服务。以极致用户体验的绿色能源解决方案,助力能源转型,赋能美好生活。本次展厅设计项目的核心是“全场景绿电生态圈”的构建。展厅分为两层,总面积770平方米,以展示新能安在绿色能源领域的技术创新与发展历程为主线,设计不仅服务于品牌推广、实力展示和商务合作的需求,更通过全新的展陈理念,塑造了一个能够引发深刻思考、激发对话与合作的平台。

As a joint venture between the globally renowned lithium battery suppliers ATL and CATL, Ampace focuses on the research and innovation of high-end lithium batteries. It specializes in the development, production, sales, and service of energy storage systems, micro vehicles, and batteries for smart products. By providing green energy solutions that deliver exceptional user experiences, it contributes to energy transformation and empowers a better life.The core of this exhibition hall design project is the creation of a "full-scenario green energy ecosystem." The hall is spread across two floors, covering a total area of 770 square meters. It primarily showcases Ampace technological innovations and development history in the green energy sector. The design not only serves the needs of brand promotion, strength demonstration, and business collaboration but also, through a fresh exhibition concept, creates a platform that inspires deep reflection and fosters dialogue and cooperation.

As a joint venture between the globally renowned lithium battery suppliers ATL and CATL, Ampace focuses on the research and innovation of high-end lithium batteries. It specializes in the development, production, sales, and service of energy storage systems, micro vehicles, and batteries for smart products. By providing green energy solutions that deliver exceptional user experiences, it contributes to energy transformation and empowers a better life.The core of this exhibition hall design project is the creation of a "full-scenario green energy ecosystem." The hall is spread across two floors, covering a total area of 770 square meters. It primarily showcases Ampace technological innovations and development history in the green energy sector. The design not only serves the needs of brand promotion, strength demonstration, and business collaboration but also, through a fresh exhibition concept, creates a platform that inspires deep reflection and fosters dialogue and cooperation.

As a joint venture between the globally renowned lithium battery suppliers ATL and CATL, Ampace focuses on the research and innovation of high-end lithium batteries. It specializes in the development, production, sales, and service of energy storage systems, micro vehicles, and batteries for smart products. By providing green energy solutions that deliver exceptional user experiences, it contributes to energy transformation and empowers a better life.The core of this exhibition hall design project is the creation of a "full-scenario green energy ecosystem." The hall is spread across two floors, covering a total area of 770 square meters. It primarily showcases Ampace technological innovations and development history in the green energy sector. The design not only serves the needs of brand promotion, strength demonstration, and business collaboration but also, through a fresh exhibition concept, creates a platform that inspires deep reflection and fosters dialogue and cooperation.

COPYRIGHT  © 2026 SUODESIGN ALL RIGHTS RESERVED

COPYRIGHT  © 2026 SUODESIGN ALL RIGHTS RESERVED

COPYRIGHT  © 2026 SUODESIGN ALL RIGHTS RESERVED

COPYRIGHT  © 2026 SUODESIGN ALL RIGHTS RESERVED

技术支持:Creght